復習備考
| 業務中心: | 0371-55696552 18037153049 |
您的當前位置:魯班培訓-一建培訓,二建培訓,監理,注冊安全工程師等 > 復習備考 > 模擬試卷 >
2014年二級建造師《建設工程施工管理》模擬試題
作者:魯班培訓 來源:魯班培訓 瀏覽: 添加日期:2015-07-23
一、單項選擇題(共70題,每題1分。每題的備選項中,只有1個最符合題意)
1、雙代號網絡圖的組成要素是指( )。
A.時差、最早時間、最遲時間
B.總時差、局部時差、計算工期
C.工作、節點、線路
D.工作、節點、關鍵線路
2、雙代號網絡圖的組成要素是指( )。
A.時差、最早時間、最遲時間
B.總時差、局部時差、計算工期
C.工作、節點、線路
D.工作、節點、關鍵線路
3、某施工企業按規定為職工購買防暑降溫飲料的支出屬于( )。
A.人工費里的補貼
B.職工福利費
C.勞動保護費
D.企業管理費中的其他費用
4、如發包人提供的測量基準點錯誤導致工程損失,發包人應( )。
A.承擔由此增加的費用,但不承擔工期延誤
B.承擔由此造成的工期延誤,但不承擔由此增加的費用
C.承擔由此增加的費用和工期延誤,但不補償承包人利潤損失
D.承擔由此增加的費用和工期延誤,并向承包人支付合理利潤
5、根據成本信息和施工項目的具體情況,在施工以前對成本進行估算,并作為施工項目成本決策依據的是( )。
A.施工成本預測
B.施工成本分析
C.施工成本計劃
D.施工成本核算
6、施工單位在編制工程竣工結算時,下列選項不作為其編制依據的是( )。
A.計價規范
B.工程合同
C.招標文件
D.投標文件
7、工程檔案的表格應采用統一表格,特殊要求需增加的表格應( )。
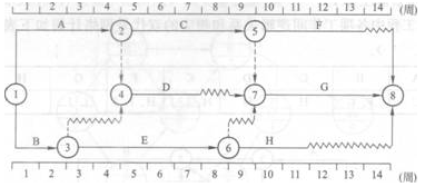
A.及時上報
B.統一報批
C.及時備案
D.統一歸類
8、某開發公司計劃建設一幢高檔寫字樓項目,采用施工總承包模式,并在未完成施工圖設計的情況下采用“費率招標”方式進行招標。這種方式對業主在費用控制方面的影響是( )。
A.在開工前就有較明確的合同價,有利于業主對總造價的早期控制
B.在開工前合同價格不明確,不利于業主對總造價的早期控制
C.費用控制的好壞在很大程度上取決于施工總承包單位的選擇
D.在施工過程中發生設計變更,產生索賠的可能性小
9、關于工程檔案的編制,下列表述中正確的是( )。
A.工程檔案應在竣工后及時收集整理
B.工程檔案不得涂改和隨意抽撤
C.工程檔案的內容由建設單位確定
D.工程檔案由施工單位組織編制
10、某工程網絡計劃中,工作w的最早開始時間和最遲開始時間分別為第12天和第15天,其持續時間為5天,工作W有3個緊后工作,它們的最早開始時間分別為第21天,第24天和第28天,則w的自由時差為( )天。
A.4
B.7
C.11
D.6
11、 項目經理王某在工作中發現由于某些工作之間缺乏聯系,導致多付給分包商多項費用。對此,王某組織有關人員對費用控制工作之間的邏輯關系進行調整。王某的工作應當基于( )進行。
A.工作流程圖
B.項目結構圖
C.合同結構圖
D.組織結構圖
12、 某施工單位承建某建設工程項目,該項目建設工期很緊,為了保證工程建設的順利進行,建設單位向施工單位及時提供了原始坐標點、基準線和水準點等測量控制點等資料。施工單位應( )。
A.按照建設單位提供的資料及時開始施工
B.首先進行復核,然后將復測結果報監理單位審核
C.首先進行復核,然后將復測結果報設計單位審核
D.首先進行復核,然后將復測結果報勘察單位審核
13、 雙代號網絡圖中,某非關鍵工作的拖延時間不超過自由時差,則( )。
A.后續工作最早可能開始時間不變
B.僅改變后續工作最早可能開始時間
C.后續工作最遲必須開始時間改變
D.緊后工作最早可能開始時間改變
14、 負責對本行政區域內建設工程安全生產工作實施綜合監督管理的機構是( )。
A.縣級以上地方人民政府
B.省、自治區、直轄市人民政府
C.縣級以上地方人民政府安全生產監督管理部門
D.縣級以上地方人民政府建設行政主管部門
15、 施工企業與項目經理簽訂項目管理目標責任書的主要依據是( )。
A.工程施工合同
B.建設工程項目管理規范
C.施工企業投標文件
D.工程項目招標文件
16、 下列選項中屬于風險響應工作內容的是( )。
A.分析各種風險因素發生的概率
B.分析各種風險的損失量
C.確定各種風險的風險量和風險等級
D.確定應對各種風險的風險對策
17、關于民用爆炸物品儲存的說法,錯誤的是( )。
A.爆炸物品應當儲存在專用倉庫內
B.爆炸物品儲存倉庫禁止存放其他物品
C.過期失效的爆炸物品應及時清理并自行銷毀
D.爆炸物品發生丟失應當立即報告當地公安機關
18、 對于采用新技術、新工藝、新材料、新設備以及專業性較強、危險性較大的工程項目,監理機構除了編制工程建設監理規劃之外還應編制( )。
A.工程項目管理規劃大綱
B.工程建設監理實施規劃
C.工程建設 監理實施細則
D.工程項目管理實施規劃
19、 某施工企業按規定標準為職工繳納的住房公積金屬于( )。
A.企業管理費
B.社會保險費
C.規費
D.稅金
20、 某基礎工程包含土方和混凝土兩個子項工程,工程量清單中的土方工程量為4400m3,混凝土工程量為2000m3,合同約定:土石方工程綜合單價為75元/m3,混凝土工程綜合單價為420元/m3;工程預付款額度為合同價的15%,主要材料和構配件所占比重為60%。則該工程預付款的額度及起扣點分別為( )萬元。
A.17.55,87.75
B.17.10,99.45
C.17.10,87.75
D.17.55,99.45
21、 下列選項中,屬于施工組織總設計編制依據的是( )。
A.建設工程監理合同
B.批復的可行性研究報告
C.各項資源需求量計劃
D.單位工程施工組織設計
22、 工人在工作班內消耗的工作時間可以分為必需消耗的時間和損失時間。必需消耗的工作時間,包括有效工作時間,休息和不可避免中斷時間。下列與休息時間長短有關的是( )。
A.工作量
B.工作內容
C.勞動條件
D.工作班數量
23、 可用于瓦斯及煤塵突出礦井的炸藥是( )。
A.3級煤礦許用炸藥
B.乳化炸藥
C.水膠炸藥
D.銨油炸藥
24、 在國際上,施工企業項目經理是企業任命的一個項目的項目管理班子的負責人,其主要任務是( )。
A.負責項目的人員配置和物資采購
B.負責項目的技術管理工作
C.代表企業法定代表人在項目上行使法律責任
D.項目目標的控制和組織協調
25、 根據《建設工程施工專業分包合同(示范文本)》GF—2003—o213的規定,承包人應當向分包人提供( )。
A.全套總包合同供分包人查閱
B.合同專用條款中約定的設備和設施,費用由分包人承擔
C.與監理公司簽訂的合同
D.與分包工程相關的各種證件、批件和各種相關資料
26、 建設工程施工招標應具備的條件有( )。
A.已委托招標代理機構
B.招標文件已編制完成
C.初步設計及概算應當履行批準手續的,已經批準
D.施工圖設計及預算應當履行批準手續的,已經批準
27、 某工程主體結構混凝土工程量約3200m3,預算單價550元/m3,計劃4個月內均衡完成。開工后,混凝土實際采購價格為560元/m3。施工至第二個月底,實際完成混凝土工程量1800m3。運用贏得值法,可分析得到該工程發生了費用偏差,此時應采取的可行的糾偏措施是( )。
A.加快施工進度
B.重新選擇混凝土供應商
C.調整工程數量
D.進行材料代用
28、對業主方項目管理的目標而言,進度目標是指項目的( )。
A.立項時間目標
B.竣工時間目標
C.啟用時間目標
D.運營時間目標
29、 工程質量監督申報手續應在工程項目( )向工程質量監督機構辦理。
A.開工前,由建設單位
B.開工之日起3日內,由建設單位
C.開工前,由施工單位
D.開工之日起3日內,由施工單位
30、 雙代號網絡圖中,某非關鍵工作的拖延時間不超過自由時差,則( )。
A.后續工作最早可能開始時間不變
B.僅改變后續工作最早可能開始時間
C.后續工作最遲必須開始時間改變
D.緊后工作最早可能開始時間改變
31、 某雙代號網絡計劃如下圖所示。由于惡劣天氣原因,T作A施工時間延誤40天,則會影響施工工期( )天。

A.0
B.6
C.11
D.15
32、 施工企業的施工生產計劃根據施工任務量、企業經營的需求和資源利用的可能性等,合理安排計劃周期內的施工生產活動,它包括( )。
A.單體工程施工進度計劃
B.企業月度生產計劃
C.施工總進度規劃
D.施工總進度方案
33、 某施工項目分部分項工程費為1200萬元,其中人工費為450萬元,機械費為300萬元,可計量的措施項目費為400萬元,該施工項目的安全文明施工費以人工費和機械費為計算基礎,費率為2%,則該施工項目的安全文明施工費為( )萬元。
A.32
B.24
C.23
D.15
34、 根據《標準施工招標文件》中“通用合同條款”的規定,質量保證金的計算額度應包括( )。
A.預付款的支付
B.承包人完成的安裝工程款
C.價格調整的金額
D.預付款的扣回
35、按照文明施工管理措施的要求,下列關于施工現場臨設布置的表述中,正確的是( )。
A.集體宿舍與作業區隔離
B.人均床鋪面積不小于3m2
C.盡量減少用明火燒煮食物 .
D.臨時建筑物、構筑物堅固、耐用、美觀
36、 某合同工程于某年11月初辦理了合同工程接收證書,2周以后,承包人提出提交最終結算申請單,并提出10月下旬尚有一費用超支索賠問題沒有超過28天需要研究解決,在此事件中承包人( )。
A.可以索賠,因為索賠事件發生沒有超過28天
B.可以索賠,因為工程還沒有接受最終結清證書
C.不可以索賠,因為此事件發生在接受工程接受證書之前
D.不可以索賠,因為此事件發生在接受最終結清證書之后
37、 某工程雙代號時標網絡計劃如下圖所示,則該進度計劃的關鍵線路是( )。

A.1—2—5—7—8
B.1—2—4—7—8
C.1—2—5—8
D.1—3—6—7—8
38、 甲高級中學建設為政府投資項目,其中的教學樓工程由乙設計院設計,由丙建筑公司進行施工總承包,則教學樓建設工程項目實施階段的總進度目標控制應當由( )來進行。
A.乙設計院
B.丙建筑公司
C.甲高級中學
D.安全質量監督站
39、 某合同工程由于設計變更,發生現場簽證事項,承包人為了趕工,在未經發包人現場確認和書面同意的情況下便擅自施工,由此產生的費用由( )承擔。
A.發包人
B.承包人
C.承發包雙方共同
D.設計單位
40、 對于固定總價合同的計價方式,承包商為了降低自己在工程量和價格上承擔的風險,通常會在合同報價中報較高的( )。
A.措施費
B.不可預計風險費
C.單價
D.管理費
41、 某建設工程項目以最大成本加費用合同形式發包,合同中規定的工程成本總價是1600萬元,固定酬金是350萬元。施工完成后實際的成本是1650萬元。則根據合同,承包商可以獲得的支付是( )萬元。
A.1600
B.1650
C.1950
D.2000
42、以建筑物或構筑物各個分部分項工程為對象編制的定額是( )。
A.預算定額
B.概算定額
C.概算指標
D.投資估算指標
43、 特殊過程的質量控制,除按一般過程質量控制的規定執行外,還應( )。
A.由專業技術人員編制作業指導書,經項目經理審批后執行
B.由專業技術人員編制作業指導書,經項目技術負責人審批后執行
C.由項目技術負責人編制作業指導書,經項目經理審批后執行
D.由項目技術負責人編制作業指導書,經施工企業技術負責人審批后執行
44、 施工進度控制的技術措施涉及對實現施工進度目標有利的( )的選用。
A.控制技術
B.合同結構
C.組織結構形式
D.設計技術和施工技術
45、 某工程商品混凝土的目標產量為500m3,單價720元/m3,損耗率4%。實際產量為550m3,單價730元/m3,損耗率3%。采用因素分析法進行分析,由單價提高使費用增加了( )元。
A.43160
B.37440
C.5720
D.1705
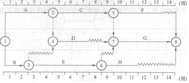
46、 某工程雙代號時標網絡計劃如下圖所示,則該進度計劃的關鍵線路是( )。

A.1—2—5—7—8
B.1—2—4—7—8
C.1—2—5—8
D.1—3—6—7—8
47、 項目施工準備階段的施工預算成本計劃是指( )。
A.競爭性成本計劃
B.指導性成本計劃
C.實施性成本計劃
D.戰略性成本計劃
48、 鋼筋混凝土井塔爬模施工法的特點是( )。
A.起重機吊裝工作量大
B.施工精度高、質量好
C.因分層施工而結構整體性差
D.爬升時無需支承桿
49、 旁站監理員發現施工單位在主體結構的施工中有違反工程建設強制性標準的行為,有權( )。
A.向施工企業下達局部停工令
B.責令施工企業立即整改
C.報告建設單位并采取應急措施
D.報告政府主管部門并采取措施
50、 在施工過程中必須發生,但在投標時很難具體分項預測的二次搬運費和冬雨期施工費用的計價適宜采用( )。
A.實物量法
B.綜合單價法
C.參數法
D.分包法
鄭州




